Constructing Jupiter Chrysler Corporation Missile Division, Warren, Michigan
Driving past the large warehouse-like buildings today along 16 Mile Road and Van Dyke Avenue in Warren, Michigan one would never expect that the nation’s first continuously successful IRBM missiles had been built there during the late 1950’s and early 1960’s!  This was the home of the Chrysler Corporation Missile Division’s (CCMD) Jupiter missile construction facilities. Edgar May was one of the division’s individuals who participated in the design/construction of Jupiter’s component parts. The following are photos with descriptions of various stages of construction throughout the plant as provided by Ed. [Note Mgr.’s lapel pin…the Chrysler icon, in those days the “forward” look!). Edgar W. May was born April 11,1931, graduated Edwin Denby High school Detroit, Michigan in June  of 1950. He was drafted into the U. S. Army December 1951, spent one year in the Infantry serving in Korea July 1952 to July 1953. Ed studied mechanical engineering at the University of Michigan, September 1954 to May 1957, finishing his degree at University of Detroit night school. Ed began working at (CCMD) Chrysler Corporation Missile Division on May the 27th, 1957. He married in February 1958 and was blessed with a daughter and a son. He began his career as an Engineering Tech Aide at CCMD, rising through the years to become a Senior Engineering Research Specialist. Ed worked at CCMD and Chrysler Defense Engineering for fourteen years with the exception of 15 months during the period between 1964-65 when he worked at Ling Temco Vought’s (LTV) Michigan Division with the Lance Missile Program.  While at CCMD Ed worked on many different programs starting with Redstone Missile R&D and then with production versions which were deployed in Germany during the Cold War. He worked on a program to add measuring components to production block two missile CC-2015 and participated in the launch at White Sands missile range in New Mexico in what was an Army ASP (Annual Service Practice) launch. After  Redstone was retired from Army service they modified several to be launched from San Nicolas Island off the California coast as targets for a Navy antimissile program called DAT (Data Acquisition Target). They also designed nine reentry vehicles for the Sparta Program which were launched on modified Redstones with an added second stage at the Woomera Missile Range in Australia. The 10th launch in this program put the first Australian satellite WRESAT-1 in orbit and it was the 100th and last launch of a Redstone Missile.  Ed was granted Top Secret AEC clearance with the Jupiter Missile program as a result of working with its nuclear Nose Cones. Some of his additional involvement with the Jupiter program were as follows:  1) Worked closely with ABMA for the installation of all instrumentation and inter-connecting cabling in the Aft Unit; 2) Stationary erection and de-erection system for missiles that were deployed in Europe; 3) Corrected design deficiencies and converted the proto-type definition of the Vertical Shelter into a production technical data package; and 4) A system to protect the missiles deployed in Italy from lightning strikes.  We thank Ed for his work, and for sharing through his contributions insights into what surely must have been one of the most interesting careers during some of the most turbulent times times of American history.
#01. [32491: 10/22/58] Looking into the tip of a Jupiter nosecone where you can see the three impact fuses.
Ed May (Left), Dept. Manager (R), 4/14/1959.  [CCMD, Ed May] Ed May (Left), Dept. Manager (R), 4/14/1959.  [CCMD, Ed May] Ed May (Left), Dept. Manager (R), 4/14/1959.  [CCMD, Ed May]
Ed May (L) & Dept. Manager 4/14/1959
Originally published: 03/24/2017
Last updated: 01/21/2018 16:36
[60035: 6/27/1958] Re-entry vehicle, using wooden boxes to simulate actual components. Heavily instrumented for re-entry flight.  [CCMD, Ed May [60035: 6/27/1958] Re-entry vehicle, using wooden boxes to simulate actual components. Heavily instrumented for re-entry flight.  [CCMD, Ed May [60035: 6/27/1958] Re-entry vehicle, using wooden boxes to simulate actual components. Heavily instrumented for re-entry flight.  [CCMD, Ed May
#02. [60035: 6/27/1958] Re-entry vehicle, using wooden boxes to simulate actual components. Heavily instrumented for re-entry flight.
The following five photographs are of Jupiter Missile R&D (Research & Development) Nose Cones built by CCMD (Chrysler Corporation Missile Division) in 1959. The Nose Cone was designed to deliver on target a W- 49 thermonuclear 1.45 mega ton bomb. For redundancy, the bomb fuse system had three triggers: the first was a proximity device set to detonate the bomb at a set altitude burst for maximum target destruction. Secondly, if that did not work a timer started at Nose Cone separation from the Aft Unit would detonate the bomb, and thirdly if those two failed there were impact triggers set to fire at ground contact. The impact triggers can be seen on the inside tip of the Nose Cone shown in photo 32491. The scientists and engineers at the Army Ballistic Missile Agency (ABMA) in Huntsville, Alabama came up with an ingenious way to protect the aluminum body of the Nose Cone from the 2000-degree frictional heat of reentry into the earth’s atmosphere. They coated the body with a ceramic material that ablated away to throw off the reentry heat. It was two and one half inches thick at the tip of the Nose Cone and tapered to one half inch at the rear of the Cone. Photo 60035 is a view looking into a heavily instrumented Nose Cone for measuring in flight and reentry parameters and bomb triggering performance. Some of the instrument boxes are wooden mock ups at this stage of assembly. Photos 62936,62937 and 62938 are three views of another Nose Cone during assemble the two black longitudinal shapes in photo 62937 on the right side of the Nose Cone are two of the four telemetry antennas for transmitting measurement data to ground stations. Note in the right side of photo 62938 on a work stand is the nozzle of a Rocketdyne Model S-3D 150 thousand pound thrust rocket engine.

NOSE CONE

AFT

The following 18 photographs are of Jupiter Missile R&D Aft Units built by CCMD in 1958 and 1959. The Aft Unit was mounted away from and on top of the Thrust Unit. The Thrust Unit consisted of propellant tanks and the [Rocketdyne] rocket engine. The Aft Unit provided vernier adjustments for flight trajectory. Contained within the conical Aft Unit was the inertial guidance and control (G&C) instrumentation that provided guidance from launch to Nose Cone designated target. Attached to the front end of the Aft Unit was the Nose Cone. The Aft Unit and Nose Cone together are called the Body Unit. Photo 73697 is a view looking into the front of an Aft Unit sitting on a factory work stand. On the right in the photo marked Army is the Thrust Unit of a Redstone Missile also built by CCMD. For orientation, the four compartments formed by the X crossed instrument panels will be referred to as quadrants with number one at the top and clockwise to quadrant number four. The ST-90 stable platform was mounted in quadrant one floating in a stable position with respect to the earth. With a system of gyroscopes and accelerometers the ST-90 would measure deviations in three- dimensional space from the missile’s programed flight path, then provide this data to other instruments which created and provided corrections to maintain the Nose Cone on its programed course to target. The word CAUTION is marked on the aft bulkhead which with the Nose Cone attached to the front of the Aft Unit sealed the instrument compartment to atmospheric pressure. A small 500 pound thrust rocket located in the rear of the Aft Unit would be fired to move the Aft Unit away from the Thrust Unit to prevent its forward momentum from colliding with the Body Unit after Thrust Unit separation. Upon attaining ballistic flight path’s apogee the Body Unit would be oriented in the same attitude in which it had left the atmosphere. Spatial attitude control high pressure jets in the Aft Unit would be fired causing the Body Unit to tilt so that the Nose Cone would be pointed down toward the earth, at which time the Aft Unit’s Spin Rockets would be fired adding Nose Cone ballistic stability during the remainder of its flight to target. The Nose Cone would then be separated from the Aft Unit by detonating primer cord wrapped around the bolts attaching the Nose Cone to the Aft unit. The Instrument Compartment’s atmospheric pressure would push the two units apart thus ensuring the Aft Unit would not interfere with the Nose Cone. Pitot Tubes, extended during countdown, were mounted in the four cylindrical items at the outer skin of each quadrant thus providing four independent airspeed data streams to the Guidance and Control package. (see Photo 73697). Ed was working in CCMD’s Department 7262, “Electro-Mechanical Design,” during the years 1958-1959 when many of these photos were taken.
[62936: 8/12/1959] Re-entry vehicle, using wooden boxes to similate actual components. Heavily instrumented for re-entry flight.  [CCMD, Ed May] [62936: 8/12/1959] Re-entry vehicle, using wooden boxes to similate actual components. Heavily instrumented for re-entry flight.  [CCMD, Ed May] [62936: 8/12/1959] Re-entry vehicle, using wooden boxes to similate actual components. Heavily instrumented for re-entry flight.  [CCMD, Ed May]
#03. [62936: 8/12/1959] Re-entry vehicle, using wooden boxes to simulate actual components. Heavily instrumented for re-entry flight.
[73697: 3/3/1960]  Looking into top of Guidance Package, the Aft Unit (was mounted to main body, on top of fuel tanks), located just behind the warhead. Explosive bolts would separate re-entry vehicle. Right is shown a Redstone Missile (Tactical Missile). [73697: 3/3/1960]  Looking into top of Guidance Package, the Aft Unit (was mounted to main body, on top of fuel tanks), located just behind the warhead. Explosive bolts would separate re-entry vehicle. Right is shown a Redstone Missile (Tactical Missile). [73697: 3/3/1960]  Looking into top of Guidance Package, the Aft Unit (was mounted to main body, on top of fuel tanks), located just behind the warhead. Explosive bolts would separate re-entry vehicle. Right is shown a Redstone Missile (Tactical Missile).
#06 [73697: 3/3/1960] Looking into top of Guidance Package, the Aft Unit (was mounted to main body, on top of fuel tanks), located just behind the warhead. Explosive bolts would separate re-entry vehicle. Right is shown a Redstone Missile (Tactical Missile).
[62938: 8/12/1959]  Re-entry vehicle, using wooden boxes to similate actual components. Heavily instrumented for re-entry flight. To the right of the re-entry vehicle is an Engine Thrust Chamber.  [CCMD, Ed May] [62938: 8/12/1959]  Re-entry vehicle, using wooden boxes to similate actual components. Heavily instrumented for re-entry flight. To the right of the re-entry vehicle is an Engine Thrust Chamber.  [CCMD, Ed May] [62938: 8/12/1959]  Re-entry vehicle, using wooden boxes to similate actual components. Heavily instrumented for re-entry flight. To the right of the re-entry vehicle is an Engine Thrust Chamber.  [CCMD, Ed May]
#05. [62938: 8/12/1959] Re-entry vehicle, using wooden boxes to simulate actual components. Heavily instrumented for re-entry flight. To the right of the re-entry vehicle is an Engine Thrust Chamber.
[62937: 8/12/1959]  Re-entry vehicle, using wooden boxes to similate actual components. Heavily instrumented for re-entry flight.  [CCMD, Ed May] [62937: 8/12/1959]  Re-entry vehicle, using wooden boxes to similate actual components. Heavily instrumented for re-entry flight.  [CCMD, Ed May] [62937: 8/12/1959]  Re-entry vehicle, using wooden boxes to similate actual components. Heavily instrumented for re-entry flight.  [CCMD, Ed May]
#04. [62937: 8/12/1959] Re-entry vehicle, using wooden boxes to simulate actual components. Heavily instrumented for re-entry flight. The black “stripes” around the nose cone’s outside perimeter are telemetry antennas.
#22 [21108: 5/5/58] Very early mockup looking into quadrant 3 most of the instruments are wooden mockups of the real items.
[32491: 10/22/58] Looking into a real Jupiter warhead, showing impact fuse which exists in addition to a proximity fuse. There was also an electronic fuse (time into flight?)  [CCMD, Ed May] [32491: 10/22/58] Looking into a real Jupiter warhead, showing impact fuse which exists in addition to a proximity fuse. There was also an electronic fuse (time into flight?)  [CCMD, Ed May] [32491: 10/22/58] Looking into a real Jupiter warhead, showing impact fuse which exists in addition to a proximity fuse. There was also an electronic fuse (time into flight?)  [CCMD, Ed May] [21108: 5/5/58] Early mockup, parts simulated with wooden parts. Some parts were real. Wires go to dummy connectors.  [CCMD, Ed May] [21108: 5/5/58] Early mockup, parts simulated with wooden parts. Some parts were real. Wires go to dummy connectors.  [CCMD, Ed May] [21108: 5/5/58] Early mockup, parts simulated with wooden parts. Some parts were real. Wires go to dummy connectors.  [CCMD, Ed May] [69864: 12/7/1959]  Looking into another quadrant, empty. Instrument compartment was in an "X" configuration.  [CCMD, Ed May] [69864: 12/7/1959]  Looking into another quadrant, empty. Instrument compartment was in an "X" configuration.  [CCMD, Ed May] [69864: 12/7/1959]  Looking into another quadrant, empty. Instrument compartment was in an "X" configuration.  [CCMD, Ed May]
#07. [69864: 12/7/1959] View looking into quadrant 1 during an early stage of assembly. The Aft Unit had hatch openings in each quadrant to provide excess for the installation of the instrumentation and were covered with hatch panels at final assembly. In the field the hatches could be opened for any necessary repairs
[69865: 12/7/1959]  Looking into another quadrant. The "ball joint" device is an attachment point for the ST-90 Stabilization Platform. Sheet metal cover over the exposed vertical bracket used for cooling around stabilization platform.  [CCMD, Ed May] [69865: 12/7/1959]  Looking into another quadrant. The "ball joint" device is an attachment point for the ST-90 Stabilization Platform. Sheet metal cover over the exposed vertical bracket used for cooling around stabilization platform.  [CCMD, Ed May] [69865: 12/7/1959]  Looking into another quadrant. The "ball joint" device is an attachment point for the ST-90 Stabilization Platform. Sheet metal cover over the exposed vertical bracket used for cooling around stabilization platform.  [CCMD, Ed May]
#08. [69865: 12/7/1959] Looking also into quadrant 1. The "ball joint" in the lower left corner is an attachment point for the ST-90 Stabilization Platform. The sheet metal structure with the row of attaching points is the mounting surface for the cover placed over the ST-90 to reduce the volume to be cooled.
[69866: 12/7/1959]  Looing into quadrant where the SD-90 was mounted. Can see the cover. SD-90 is the inertial guidance stabilization platform. [CCMD, Ed May] [69866: 12/7/1959]  Looing into quadrant where the SD-90 was mounted. Can see the cover. SD-90 is the inertial guidance stabilization platform. [CCMD, Ed May] [69866: 12/7/1959]  Looing into quadrant where the SD-90 was mounted. Can see the cover. SD-90 is the inertial guidance stabilization platform. [CCMD, Ed May]
#09: [69866: 12/7/1959] Close up view of the ST-90 " ball joint" attachment.
[69867: 12/7/1959]  Looking to SD-90 Quadrant. EO=Engineering Order.  [CCMD, Ed May] [69867: 12/7/1959]  Looking to SD-90 Quadrant. EO=Engineering Order.  [CCMD, Ed May] [69867: 12/7/1959]  Looking to SD-90 Quadrant. EO=Engineering Order.  [CCMD, Ed May]
#10: [69867: 12/7/1959] In quadrant 1 the white marking on the black ST-90 mounting ring are to indicate the latest engineering change order (EO) incorporated into the part.
[70239: 12/10/1959]  Showing Stable Platform Mounting Bracket, full yoke. Cooling fan blowers at top and bottom.  [CCMD, Ed May] [70239: 12/10/1959]  Showing Stable Platform Mounting Bracket, full yoke. Cooling fan blowers at top and bottom.  [CCMD, Ed May] [70239: 12/10/1959]  Showing Stable Platform Mounting Bracket, full yoke. Cooling fan blowers at top and bottom.  [CCMD, Ed May]
#11. [70239: 12/10/1959] Looking straight into quadrant 1. The squared shaped structure is the mounting ring for the ST-90. At the bottom of the V is the 300 CFM blower and vents to circulate cool air over the ST-90 during flight.
[70240: 12/10/1959]  Showing Stable Platform Mounting Bracket, full yoke. Cooling fan blowers at bottom and inside. R/S Electrical Connectors covered during assembly to keep out dirt.  [CCMD, Ed May] [70240: 12/10/1959]  Showing Stable Platform Mounting Bracket, full yoke. Cooling fan blowers at bottom and inside. R/S Electrical Connectors covered during assembly to keep out dirt.  [CCMD, Ed May] [70240: 12/10/1959]  Showing Stable Platform Mounting Bracket, full yoke. Cooling fan blowers at bottom and inside. R/S Electrical Connectors covered during assembly to keep out dirt.  [CCMD, Ed May]
#12. [70240: 12/10/1959] Showing Stable Platform Mounting Bracket, full yoke. Cooling fan blowers at bottom and inside. R/S Electrical Connectors covered during assembly to keep out dirt.
[33816: 11/03/58] Instrument panels are made out of plywood. Developed honeycomb aluminum, R&D Warhead early in program. Two cutouts show 2ea antennas telemetry.  [CCMD, Ed May] [33816: 11/03/58] Instrument panels are made out of plywood. Developed honeycomb aluminum, R&D Warhead early in program. Two cutouts show 2ea antennas telemetry.  [CCMD, Ed May] [33816: 11/03/58] Instrument panels are made out of plywood. Developed honeycomb aluminum, R&D Warhead early in program. Two cutouts show 2ea antennas telemetry.  [CCMD, Ed May]
#21. [33816: 11/03/58] View looking into quadrant 4 of a very early R&D Aft Unit. Note that the instrumental panels are plywood. Developed honeycomb aluminum, R&D Warhead early in program. Two cutouts show 2ea antennas telemetry.
#13. [69862: 12/7/1959] View looking at the right-side instrument panel of quadrant 2. R&D missiles used plywood instrument panel but for weight reduction production units used honeycombed aluminum. The large tank held in place with the two metal straps is the Ln2 (liquid nitrogen) container for the in-flight cooling system. It is wrapped with insulation held in place with duct tape. The corrugated tubing at the right side is for the exterior pre-fight cooling system.
[69862: 12/7/1959]  Aft Unit Instrumentation, using honeycombed Aluminum mounting surfaces. Liquid Nitrogen in-flight cooling tank. Wrapped with insulation, wrapped with duct tape to hold in place.  [CCMD, Ed May] [69862: 12/7/1959]  Aft Unit Instrumentation, using honeycombed Aluminum mounting surfaces. Liquid Nitrogen in-flight cooling tank. Wrapped with insulation, wrapped with duct tape to hold in place.  [CCMD, Ed May
[69869: 12/7/1959]  Looking into another quadrant; shows honeycomb aluminum mounting panel. Part of guidance, "Program Device," made by Ford.  [CCMD, Ed May] [69869: 12/7/1959]  Looking into another quadrant; shows honeycomb aluminum mounting panel. Part of guidance, "Program Device," made by Ford.  [CCMD, Ed May] [69869: 12/7/1959]  Looking into another quadrant; shows honeycomb aluminum mounting panel. Part of guidance, "Program Device," made by Ford.  [CCMD, Ed May]
#18: [69869: 12/7/1959] The Flight Programmer is mounted on the left instrument panel of quadrant 4. The Ln2 fill tube passes thru the panel across the top of quadrant 1 thru the right panel of quadrant 2 and into the Ln2 tank. At the top of the photo is the extendible pitot tube canister.
#19. [33824: 11/03/58] The rear end of an Aft Unit sitting on a factory work stand. At the left is one of the fiber glass spheres that held the high- pressure air for the spatial attitude control system.
[33824: 11/03/58] Looking at the bottom of the G&C package. Sphere is fiberglass for high pressure air, tested to 7500psi, Flight Tested to 3,000 psi. Spatial Directional Countrol.  [CCMD, Ed May] [33824: 11/03/58] Looking at the bottom of the G&C package. Sphere is fiberglass for high pressure air, tested to 7500psi, Flight Tested to 3,000 psi. Spatial Directional Countrol.  [CCMD, Ed May] [33824: 11/03/58] Looking at the bottom of the G&C package. Sphere is fiberglass for high pressure air, tested to 7500psi, Flight Tested to 3,000 psi. Spatial Directional Countrol.  [CCMD, Ed May] #20: [33826: 11/03/58]  #19: [33824: (11/3/1958)] Thrust Unit electric cables would be connected to the five connectors shown for the transmission of signals such as rocket engine gimbling instructions for directional control, burn time and Thrust Unit separation command. At this point of assembly, the 500 pound Vernier rocket motor is not yet installed. [33826: 11/03/58]  Another view of the G&C package. Six electrical connectors feed propulsion unit (fuel tanks, engine).  [CCMD, Ed May] [33826: 11/03/58]  Another view of the G&C package. Six electrical connectors feed propulsion unit (fuel tanks, engine).  [CCMD, Ed May] [33826: 11/03/58]  Another view of the G&C package. Six electrical connectors feed propulsion unit (fuel tanks, engine).  [CCMD, Ed May]
#14. [69863: 12/7/1959] View looking at the left side instrument panel of quadrant 2. Aft Unit Instrumentation, using honeycombed Aluminum mounting surfaces. Liquid Nitrogen in-flight cooling tank. Wrapped with insulation, wrapped with duct tape to hold in place.
[69863: 12/7/1959]  Aft Unit Instrumentation, using honeycombed Aluminum mounting surfaces. Liquid Nitrogen in-flight cooling tank. Wrapped with insulation, wrapped with duct tape to hold in place.  [CCMD, Ed May] [69863: 12/7/1959]  Aft Unit Instrumentation, using honeycombed Aluminum mounting surfaces. Liquid Nitrogen in-flight cooling tank. Wrapped with insulation, wrapped with duct tape to hold in place.  [CCMD, Ed May] [69863: 12/7/1959]  Aft Unit Instrumentation, using honeycombed Aluminum mounting surfaces. Liquid Nitrogen in-flight cooling tank. Wrapped with insulation, wrapped with duct tape to hold in place.  [CCMD, Ed May] [73698: 3/3/1960]  Top of Liquid Nitrogen Cooling Tank, showing flex tubing that routes cool air to G&C package. Aluminum tubing was high pressure air feeding tank to circulate nitro for cooling.  [CCMD, Ed May] [73698: 3/3/1960]  Top of Liquid Nitrogen Cooling Tank, showing flex tubing that routes cool air to G&C package. Aluminum tubing was high pressure air feeding tank to circulate nitro for cooling.  [CCMD, Ed May] [73698: 3/3/1960]  Top of Liquid Nitrogen Cooling Tank, showing flex tubing that routes cool air to G&C package. Aluminum tubing was high pressure air feeding tank to circulate nitro for cooling.  [CCMD, Ed May]
#15. [73698: 3/3/1960] View looking at the top of the Ln2 tank. The three corrugated tubes are for routing cooled air from the tank into other quadrants. The Ln2 is pumped into the tank during countdown through the small tube elbowed down into the tank.
[69868: 12/7/1959]  Black box is a 400cps Inverter, converted 28vdc DC to 400Hz AC. Unit 300cf/s cooling source was taped off.  [CCMD, Ed May] [69868: 12/7/1959]  Black box is a 400cps Inverter, converted 28vdc DC to 400Hz AC. Unit 300cf/s cooling source was taped off.  [CCMD, Ed May] [69868: 12/7/1959]  Black box is a 400cps Inverter, converted 28vdc DC to 400Hz AC. Unit 300cf/s cooling source was taped off.  [CCMD, Ed May]
#16. [69868: 12/7/1959] View looking into quadrant 3 under the black instrument (which is an inverter for converting 28-volt DC into 400Hz AC) is the blower for the preflight cooling system.
[69870: 12/7/1959]  Looking into 4th quadrant, tubing covered with tape was part of cooling system.  [CCMD, Ed May] [69870: 12/7/1959]  Looking into 4th quadrant, tubing covered with tape was part of cooling system.  [CCMD, Ed May] [69870: 12/7/1959]  Looking into 4th quadrant, tubing covered with tape was part of cooling system.  [CCMD, Ed May]
#17. [69870: 12/7/1959] View looking into quadrant 4. The duck tapped tubing is the line for filling the Ln2 tank during countdown.

GROUND CONTROL EQUIPMENT

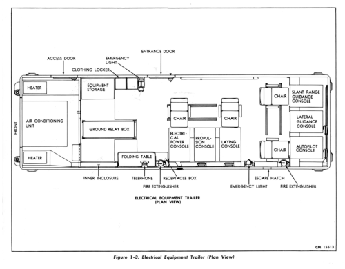
The human interface to the Jupiter missile came through the Launch Consoles contained within the Launch Trailers. The following five photos show the Launch Trailer and their console’s initial configuration.
[71890: 1/28/1960]  Launch Control Trailer Schematic.  [CCMD, Ed May] [71890: 1/28/1960]  Launch Control Trailer Schematic.  [CCMD, Ed May] [71890: 1/28/1960]  Launch Control Trailer Schematic.  [CCMD, Ed May]
#23. [71890: 1/28/1960] Floor plan of the Electrical Equipment Trailer which was used to run periodic checkups of all missile instrumentation.
[49597, 6/18/1959] Chrysler R&D Missile; CM AP initials:  C= Chrysler  M=Missile  AP?=21  = Chrysler Missile 21.  [CCMD, Ed May] [49597, 6/18/1959] Chrysler R&D Missile; CM AP initials:  C= Chrysler  M=Missile  AP?=21  = Chrysler Missile 21.  [CCMD, Ed May] [49597, 6/18/1959] Chrysler R&D Missile; CM AP initials:  C= Chrysler  M=Missile  AP?=21  = Chrysler Missile 21.  [CCMD, Ed May]
#28. [49597; 6/18/1959] Chrysler R&D Missile; CM AP initials: C= Chrysler M=Missile AP?=21 = Chrysler Missile 21 [for reasons of security to conceal the number of the missile a word was used maybe in this case Able B for 2 and A for 1.]
[47148: 05/06/1959]  Inside Launch Trailer.  [CCMD, Ed May] [47148: 05/06/1959]  Inside Launch Trailer.  [CCMD, Ed May] [47148: 05/06/1959]  Inside Launch Trailer.  [CCMD, Ed May]
#24. [47148: 05/06/1959] View looking aft in the Launch Control Trailer.
[47147: 05/06/1959]  Launch Console for 3 missiles. One display for each of the 3 site missiles.  [CCMD, Ed May] [47147: 05/06/1959]  Launch Console for 3 missiles. One display for each of the 3 site missiles.  [CCMD, Ed May] [47147: 05/06/1959]  Launch Console for 3 missiles. One display for each of the 3 site missiles.  [CCMD, Ed May]
#27. [47147: 05/06/1959] Close up view of the Launch Control Console.
[43361: 03/10/1959]  Juno Missile, moon shot or placing object in orbit? Cooling tower falling away on right side.  [CCMD, Ed May] [43361: 03/10/1959]  Juno Missile, moon shot or placing object in orbit? Cooling tower falling away on right side.  [CCMD, Ed May] [43361: 03/10/1959]  Juno Missile, moon shot or placing object in orbit? Cooling tower falling away on right side.  [CCMD, Ed May]
#29. [43361: 03/10/1959] Juno Missile, moon shot or placing object in orbit? Cooling tower falling away on right side.
[44647: 04/02/1959]  Inside Launch Trailer. Launch Console was forward in trailer.  [CCMD, Ed May] [44647: 04/02/1959]  Inside Launch Trailer. Launch Console was forward in trailer.  [CCMD, Ed May] [44647: 04/02/1959]  Inside Launch Trailer. Launch Console was forward in trailer.  [CCMD, Ed May]
#25. [44647: 04/02/1959] Also looking aft in the Launch Control Trailer.
[29998: 9/22/58] Launch Console for 3 missiles. One display for each of the 3 site missiles. [CCMD, Ed May] [29998: 9/22/58] Launch Console for 3 missiles. One display for each of the 3 site missiles. [CCMD, Ed May] [29998: 9/22/58] Launch Console for 3 missiles. One display for each of the 3 site missiles. [CCMD, Ed May]
#26. [29998: 9/22/58] Launch Control Console, one panel for each of the three missiles on the launch site.
Jupiter’s Ground Equipment Ed May

Jupiter SM-78 Weapon System

I&C Team 2, Çigli AB, Turkey 1961-1962 Chrysler Corporation Missile Division
Made with Xara Driving past the large warehouse-like buildings today along 16 Mile Road and Van Dyke Avenue in Warren, Michigan one would never expect that the nation’s first continuously successful IRBM missiles had been built there during the late 1950’s and early 1960’s!  This was the home of the Chrysler Corporation Missile Division’s (CCMD) Jupiter missile construction facilities. Edgar May was one of the division’s individuals who participated in the design/construction of Jupiter’s component parts. The following are photos with descriptions of various stages of construction throughout the plant as provided by Ed. [Note Mgr.’s lapel pin…the Chrysler icon, in those days the “forward” look!). Edgar W. May was born April 11,1931, graduated Edwin Denby High school Detroit, Michigan in June  of 1950. He was drafted into the U. S. Army December 1951, spent one year in the Infantry serving in Korea July 1952 to July 1953. Ed studied mechanical engineering at the University of Michigan, September 1954 to May 1957, finishing his degree at University of Detroit night school. Ed began working at (CCMD) Chrysler Corporation Missile Division on May the 27th, 1957. He married in February 1958 and was blessed with a daughter and a son. He began his career as an Engineering Tech Aide at CCMD, rising through the years to become a Senior Engineering Research Specialist. Ed worked at CCMD and Chrysler Defense Engineering for fourteen years with the exception of 15 months during the period between 1964-65 when he worked at Ling Temco Vought’s (LTV) Michigan Division with the Lance Missile Program.  While at CCMD Ed worked on many different programs starting with Redstone Missile R&D and then with production versions which were deployed in Germany during the Cold War. He worked on a program to add measuring components to production block two missile CC-2015 and participated in the launch at White Sands missile range in New Mexico in what was an Army ASP (Annual Service Practice) launch. After  Redstone was retired from Army service they modified several to be launched from San Nicolas Island off the California coast as targets for a Navy antimissile program called DAT (Data Acquisition Target). They also designed nine reentry vehicles for the Sparta Program which were launched on modified Redstones with an added second stage at the Woomera Missile Range in Australia. The 10th launch in this program put the first Australian satellite WRESAT-1 in orbit and it was the 100th and last launch of a Redstone Missile.  Ed was granted Top Secret AEC clearance with the Jupiter Missile program as a result of working with its nuclear Nose Cones. Some of his additional involvement with the Jupiter program were as follows:  1) Worked closely with ABMA for the installation of all instrumentation and inter-connecting cabling in the Aft Unit; 2) Stationary erection and de-erection system for missiles that were deployed in Europe; 3) Corrected design deficiencies and converted the proto-type definition of the Vertical Shelter into a production technical data package; and 4) A system to protect the missiles deployed in Italy from lightning strikes.  We thank Ed for his work, and for sharing through his contributions insights into what surely must have been one of the most interesting careers during some of the most turbulent times times of American history. Ed May (Left), Dept. Manager (R), 4/14/1959.  [CCMD, Ed May] Ed May (Left), Dept. Manager (R), 4/14/1959.  [CCMD, Ed May] Ed May (Left), Dept. Manager (R), 4/14/1959.  [CCMD, Ed May]
Ed May (L) & Dept. Manager 4/14/1959
Ed May

NOSE CONE

The following five photographs are of Jupiter Missile R&D (Research & Development) Nose Cones built by CCMD (Chrysler Corporation Missile Division) in 1959. The Nose Cone was designed to deliver on target a W-49 thermonuclear 1.45 mega ton bomb. For redundancy, the bomb fuse system had three triggers: the first was a proximity device set to detonate the bomb at a set altitude burst for maximum target destruction. Secondly, if that did not work a timer started at Nose Cone separation from the Aft Unit would detonate the bomb, and thirdly if those two failed there were impact triggers set to fire at ground contact. The impact triggers can be seen on the inside tip of the Nose Cone shown in photo 32491. The scientists and engineers at the Army Ballistic Missile Agency (ABMA) in Huntsville, Alabama came up with an ingenious way to protect the aluminum body of the Nose Cone from the 2000-degree frictional heat of reentry into the earth’s atmosphere. They coated the body with a ceramic material that ablated away to throw off the reentry heat. It was two and one half inches thick at the tip of the Nose Cone and tapered to one half inch at the rear of the Cone. Photo 60035 is a view looking into a heavily instrumented Nose Cone for measuring in flight and reentry parameters and bomb triggering performance. Some of the instrument boxes are wooden mock ups at this stage of assembly. Photos 62936,62937 and 62938 are three views of another Nose Cone during assemble the two black longitudinal shapes in photo 62937 on the right side of the Nose Cone are two of the four telemetry antennas for transmitting measurement data to ground stations. Note in the right side of photo 62938 on a work stand is the nozzle of a Rocketdyne Model S-3D 150 thousand pound thrust rocket engine.
[32491: 10/22/58] Looking into a real Jupiter warhead, showing impact fuse which exists in addition to a proximity fuse. There was also an electronic fuse (time into flight?)  [CCMD, Ed May] [32491: 10/22/58] Looking into a real Jupiter warhead, showing impact fuse which exists in addition to a proximity fuse. There was also an electronic fuse (time into flight?)  [CCMD, Ed May] [32491: 10/22/58] Looking into a real Jupiter warhead, showing impact fuse which exists in addition to a proximity fuse. There was also an electronic fuse (time into flight?)  [CCMD, Ed May]
#01. [32491: 10/22/58] Looking into the tip of a Jupiter nosecone where you can see the three impact fuses.
[60035: 6/27/1958] Re-entry vehicle, using wooden boxes to simulate actual components. Heavily instrumented for re-entry flight.  [CCMD, Ed May [60035: 6/27/1958] Re-entry vehicle, using wooden boxes to simulate actual components. Heavily instrumented for re-entry flight.  [CCMD, Ed May [60035: 6/27/1958] Re-entry vehicle, using wooden boxes to simulate actual components. Heavily instrumented for re-entry flight.  [CCMD, Ed May
#02. [60035: 6/27/1958] Re-entry vehicle, using wooden boxes to simulate actual components. Heavily instrumented for re-entry flight.
[62936: 8/12/1959] Re-entry vehicle, using wooden boxes to similate actual components. Heavily instrumented for re-entry flight.  [CCMD, Ed May] [62936: 8/12/1959] Re-entry vehicle, using wooden boxes to similate actual components. Heavily instrumented for re-entry flight.  [CCMD, Ed May] [62936: 8/12/1959] Re-entry vehicle, using wooden boxes to similate actual components. Heavily instrumented for re-entry flight.  [CCMD, Ed May]
#03. [62936: 8/12/1959] Re-entry vehicle, using wooden boxes to simulate actual components. Heavily instrumented for re-entry flight.
[62937: 8/12/1959]  Re-entry vehicle, using wooden boxes to similate actual components. Heavily instrumented for re-entry flight.  [CCMD, Ed May] [62937: 8/12/1959]  Re-entry vehicle, using wooden boxes to similate actual components. Heavily instrumented for re-entry flight.  [CCMD, Ed May] [62937: 8/12/1959]  Re-entry vehicle, using wooden boxes to similate actual components. Heavily instrumented for re-entry flight.  [CCMD, Ed May]
#04. [62937: 8/12/1959] Re-entry vehicle, using wooden boxes to simulate actual components. Heavily instrumented for re-entry flight. The black “stripes” around the nose cone’s outside perimeter are telemetry antennas.
#05. [62938: 8/12/1959] Re-entry vehicle, using wooden boxes to simulate actual components. Heavily instrumented for re-entry flight. To the right of the re-entry vehicle is an Engine Thrust Chamber.
AFT The following 18 photographs are of Jupiter Missile R&D Aft Units built by CCMD in 1958 and 1959. The Aft Unit was mounted away from and on top of the Thrust Unit. The Thrust Unit consisted of propellant tanks and the [Rocketdyne] rocket engine. The Aft Unit provided vernier adjustments for flight trajectory. Contained within the conical Aft Unit was the inertial guidance and control (G&C) instrumentation that provided guidance from launch to Nose Cone designated target. Attached to the front end of the Aft Unit was the Nose Cone. The Aft Unit and Nose Cone together are called the Body Unit. Photo 73697 is a view looking into the front of an Aft Unit sitting on a factory work stand. On the right in the photo marked Army is the Thrust Unit of a Redstone Missile also built by CCMD. For orientation, the four compartments formed by the X crossed instrument panels will be referred to as quadrants with number one at the top and clockwise to quadrant number four. The ST-90 stable platform was mounted in quadrant one floating in a stable position with respect to the earth. With a system of gyroscopes and accelerometers the ST-90 would measure deviations in three-dimensional space from the missile’s programed flight path, then provide this data to other instruments which created and provided corrections to maintain the Nose Cone on its programed course to target. The word CAUTION is marked on the aft bulkhead which with the Nose Cone attached to the front of the Aft Unit sealed the instrument compartment to atmospheric pressure. A small 500 pound thrust rocket located in the rear of the Aft Unit would be fired to move the Aft Unit away from the Thrust Unit to prevent its forward momentum from colliding with the Body Unit after Thrust Unit separation. Upon attaining ballistic flight path’s apogee the Body Unit would be oriented in the same attitude in which it had left the atmosphere. Spatial attitude control high pressure jets in the Aft Unit would be fired causing the Body Unit to tilt so that the Nose Cone would be pointed down toward the earth, at which time the Aft Unit’s Spin Rockets would be fired adding Nose Cone ballistic stability during the remainder of its flight to target. The Nose Cone would then be separated from the Aft Unit by detonating primer cord wrapped around the bolts attaching the Nose Cone to the Aft unit. The Instrument Compartment’s atmospheric pressure would push the two units apart thus ensuring the Aft Unit would not interfere with the Nose Cone. Pitot Tubes, extended during countdown, were mounted in the four cylindrical items at the outer skin of each quadrant thus providing four independent airspeed data streams to the Guidance and Control package. (see Photo 73697). Ed was working in CCMD’s Department 7262, “Electro- Mechanical Design,” during the years 1958-1959 when many of these photos were taken.
[73697: 3/3/1960]  Looking into top of Guidance Package, the Aft Unit (was mounted to main body, on top of fuel tanks), located just behind the warhead. Explosive bolts would separate re-entry vehicle. Right is shown a Redstone Missile (Tactical Missile). [73697: 3/3/1960]  Looking into top of Guidance Package, the Aft Unit (was mounted to main body, on top of fuel tanks), located just behind the warhead. Explosive bolts would separate re-entry vehicle. Right is shown a Redstone Missile (Tactical Missile). [73697: 3/3/1960]  Looking into top of Guidance Package, the Aft Unit (was mounted to main body, on top of fuel tanks), located just behind the warhead. Explosive bolts would separate re-entry vehicle. Right is shown a Redstone Missile (Tactical Missile).
#06 [73697: 3/3/1960] Looking into top of Guidance Package, the Aft Unit (was mounted to main body, on top of fuel tanks), located just behind the warhead. Explosive bolts would separate re-entry vehicle. Right is shown a Redstone Missile (Tactical Missile).
[69864: 12/7/1959]  Looking into another quadrant, empty. Instrument compartment was in an "X" configuration.  [CCMD, Ed May] [69864: 12/7/1959]  Looking into another quadrant, empty. Instrument compartment was in an "X" configuration.  [CCMD, Ed May] [69864: 12/7/1959]  Looking into another quadrant, empty. Instrument compartment was in an "X" configuration.  [CCMD, Ed May]
#07. [69864: 12/7/1959] View looking into quadrant 1 during an early stage of assembly. The Aft Unit had hatch openings in each quadrant to provide excess for the installation of the instrumentation and were covered with hatch panels at final assembly. In the field the hatches could be opened for any necessary repairs
[69865: 12/7/1959]  Looking into another quadrant. The "ball joint" device is an attachment point for the ST-90 Stabilization Platform. Sheet metal cover over the exposed vertical bracket used for cooling around stabilization platform.  [CCMD, Ed May] [69865: 12/7/1959]  Looking into another quadrant. The "ball joint" device is an attachment point for the ST-90 Stabilization Platform. Sheet metal cover over the exposed vertical bracket used for cooling around stabilization platform.  [CCMD, Ed May] [69865: 12/7/1959]  Looking into another quadrant. The "ball joint" device is an attachment point for the ST-90 Stabilization Platform. Sheet metal cover over the exposed vertical bracket used for cooling around stabilization platform.  [CCMD, Ed May]
#08. [69865: 12/7/1959] Looking also into quadrant 1. The "ball joint" in the lower left corner is an attachment point for the ST-90 Stabilization Platform. The sheet metal structure with the row of attaching points is the mounting surface for the cover placed over the ST-90 to reduce the volume to be cooled.
[69866: 12/7/1959]  Looing into quadrant where the SD-90 was mounted. Can see the cover. SD-90 is the inertial guidance stabilization platform. [CCMD, Ed May] [69866: 12/7/1959]  Looing into quadrant where the SD-90 was mounted. Can see the cover. SD-90 is the inertial guidance stabilization platform. [CCMD, Ed May] [69866: 12/7/1959]  Looing into quadrant where the SD-90 was mounted. Can see the cover. SD-90 is the inertial guidance stabilization platform. [CCMD, Ed May]
#09: [69866: 12/7/1959] Close up view of the ST-90 " ball joint" attachment.
[69867: 12/7/1959]  Looking to SD-90 Quadrant. EO=Engineering Order.  [CCMD, Ed May] [69867: 12/7/1959]  Looking to SD-90 Quadrant. EO=Engineering Order.  [CCMD, Ed May] [69867: 12/7/1959]  Looking to SD-90 Quadrant. EO=Engineering Order.  [CCMD, Ed May]
#10: [69867: 12/7/1959] In quadrant 1 the white marking on the black ST-90 mounting ring are to indicate the latest engineering change order (EO) incorporated into the part.
[70239: 12/10/1959]  Showing Stable Platform Mounting Bracket, full yoke. Cooling fan blowers at top and bottom.  [CCMD, Ed May] [70239: 12/10/1959]  Showing Stable Platform Mounting Bracket, full yoke. Cooling fan blowers at top and bottom.  [CCMD, Ed May] [70239: 12/10/1959]  Showing Stable Platform Mounting Bracket, full yoke. Cooling fan blowers at top and bottom.  [CCMD, Ed May]
#11. [70239: 12/10/1959] Looking straight into quadrant 1. The squared shaped structure is the mounting ring for the ST-90. At the bottom of the V is the 300 CFM blower and vents to circulate cool air over the ST-90 during flight.
[70240: 12/10/1959]  Showing Stable Platform Mounting Bracket, full yoke. Cooling fan blowers at bottom and inside. R/S Electrical Connectors covered during assembly to keep out dirt.  [CCMD, Ed May] [70240: 12/10/1959]  Showing Stable Platform Mounting Bracket, full yoke. Cooling fan blowers at bottom and inside. R/S Electrical Connectors covered during assembly to keep out dirt.  [CCMD, Ed May] [70240: 12/10/1959]  Showing Stable Platform Mounting Bracket, full yoke. Cooling fan blowers at bottom and inside. R/S Electrical Connectors covered during assembly to keep out dirt.  [CCMD, Ed May]
#12. [70240: 12/10/1959] Showing Stable Platform Mounting Bracket, full yoke. Cooling fan blowers at bottom and inside. R/S Electrical Connectors covered during assembly to keep out dirt.
#13. [69862: 12/7/1959] View looking at the right-side instrument panel of quadrant 2. R&D missiles used plywood instrument panel but for weight reduction production units used honeycombed aluminum. The large tank held in place with the two metal straps is the Ln2 (liquid nitrogen) container for the in-flight cooling system. It is wrapped with insulation held in place with duct tape. The corrugated tubing at the right side is for the exterior pre-fight cooling system.
[69862: 12/7/1959]  Aft Unit Instrumentation, using honeycombed Aluminum mounting surfaces. Liquid Nitrogen in-flight cooling tank. Wrapped with insulation, wrapped with duct tape to hold in place.  [CCMD, Ed May] [69862: 12/7/1959]  Aft Unit Instrumentation, using honeycombed Aluminum mounting surfaces. Liquid Nitrogen in-flight cooling tank. Wrapped with insulation, wrapped with duct tape to hold in place.  [CCMD, Ed May
#14. [69863: 12/7/1959] View looking at the left side instrument panel of quadrant 2. Aft Unit Instrumentation, using honeycombed Aluminum mounting surfaces. Liquid Nitrogen in-flight cooling tank. Wrapped with insulation, wrapped with duct tape to hold in place.
[69863: 12/7/1959]  Aft Unit Instrumentation, using honeycombed Aluminum mounting surfaces. Liquid Nitrogen in-flight cooling tank. Wrapped with insulation, wrapped with duct tape to hold in place.  [CCMD, Ed May] [69863: 12/7/1959]  Aft Unit Instrumentation, using honeycombed Aluminum mounting surfaces. Liquid Nitrogen in-flight cooling tank. Wrapped with insulation, wrapped with duct tape to hold in place.  [CCMD, Ed May] [69863: 12/7/1959]  Aft Unit Instrumentation, using honeycombed Aluminum mounting surfaces. Liquid Nitrogen in-flight cooling tank. Wrapped with insulation, wrapped with duct tape to hold in place.  [CCMD, Ed May] [73698: 3/3/1960]  Top of Liquid Nitrogen Cooling Tank, showing flex tubing that routes cool air to G&C package. Aluminum tubing was high pressure air feeding tank to circulate nitro for cooling.  [CCMD, Ed May] [73698: 3/3/1960]  Top of Liquid Nitrogen Cooling Tank, showing flex tubing that routes cool air to G&C package. Aluminum tubing was high pressure air feeding tank to circulate nitro for cooling.  [CCMD, Ed May] [73698: 3/3/1960]  Top of Liquid Nitrogen Cooling Tank, showing flex tubing that routes cool air to G&C package. Aluminum tubing was high pressure air feeding tank to circulate nitro for cooling.  [CCMD, Ed May]
#15. [73698: 3/3/1960] View looking at the top of the Ln2 tank. The three corrugated tubes are for routing cooled air from the tank into other quadrants. The Ln2 is pumped into the tank during countdown through the small tube elbowed down into the tank.
[69868: 12/7/1959]  Black box is a 400cps Inverter, converted 28vdc DC to 400Hz AC. Unit 300cf/s cooling source was taped off.  [CCMD, Ed May] [69868: 12/7/1959]  Black box is a 400cps Inverter, converted 28vdc DC to 400Hz AC. Unit 300cf/s cooling source was taped off.  [CCMD, Ed May] [69868: 12/7/1959]  Black box is a 400cps Inverter, converted 28vdc DC to 400Hz AC. Unit 300cf/s cooling source was taped off.  [CCMD, Ed May]
#16. [69868: 12/7/1959] View looking into quadrant 3 under the black instrument (which is an inverter for converting 28-volt DC into 400Hz AC) is the blower for the preflight cooling system.
[69869: 12/7/1959]  Looking into another quadrant; shows honeycomb aluminum mounting panel. Part of guidance, "Program Device," made by Ford.  [CCMD, Ed May] [69869: 12/7/1959]  Looking into another quadrant; shows honeycomb aluminum mounting panel. Part of guidance, "Program Device," made by Ford.  [CCMD, Ed May] [69869: 12/7/1959]  Looking into another quadrant; shows honeycomb aluminum mounting panel. Part of guidance, "Program Device," made by Ford.  [CCMD, Ed May]
#18: [69869: 12/7/1959] The Flight Programmer is mounted on the left instrument panel of quadrant 4. The Ln2 fill tube passes thru the panel across the top of quadrant 1 thru the right panel of quadrant 2 and into the Ln2 tank. At the top of the photo is the extendible pitot tube canister.
#19. [33824: 11/03/58] The rear end of an Aft Unit sitting on a factory work stand. At the left is one of the fiber glass spheres that held the high-pressure air for the spatial attitude control system.
[33824: 11/03/58] Looking at the bottom of the G&C package. Sphere is fiberglass for high pressure air, tested to 7500psi, Flight Tested to 3,000 psi. Spatial Directional Countrol.  [CCMD, Ed May] [33824: 11/03/58] Looking at the bottom of the G&C package. Sphere is fiberglass for high pressure air, tested to 7500psi, Flight Tested to 3,000 psi. Spatial Directional Countrol.  [CCMD, Ed May] [33824: 11/03/58] Looking at the bottom of the G&C package. Sphere is fiberglass for high pressure air, tested to 7500psi, Flight Tested to 3,000 psi. Spatial Directional Countrol.  [CCMD, Ed May] [69870: 12/7/1959]  Looking into 4th quadrant, tubing covered with tape was part of cooling system.  [CCMD, Ed May] [69870: 12/7/1959]  Looking into 4th quadrant, tubing covered with tape was part of cooling system.  [CCMD, Ed May] [69870: 12/7/1959]  Looking into 4th quadrant, tubing covered with tape was part of cooling system.  [CCMD, Ed May]
#17. [69870: 12/7/1959] View looking into quadrant 4. The duck tapped tubing is the line for filling the Ln2 tank during countdown.
#22 [21108: 5/5/58] Very early mockup looking into quadrant 3 most of the instruments are wooden mockups of the real items.
[21108: 5/5/58] Early mockup, parts simulated with wooden parts. Some parts were real. Wires go to dummy connectors.  [CCMD, Ed May] [21108: 5/5/58] Early mockup, parts simulated with wooden parts. Some parts were real. Wires go to dummy connectors.  [CCMD, Ed May] [21108: 5/5/58] Early mockup, parts simulated with wooden parts. Some parts were real. Wires go to dummy connectors.  [CCMD, Ed May] [33816: 11/03/58] Instrument panels are made out of plywood. Developed honeycomb aluminum, R&D Warhead early in program. Two cutouts show 2ea antennas telemetry.  [CCMD, Ed May] [33816: 11/03/58] Instrument panels are made out of plywood. Developed honeycomb aluminum, R&D Warhead early in program. Two cutouts show 2ea antennas telemetry.  [CCMD, Ed May] [33816: 11/03/58] Instrument panels are made out of plywood. Developed honeycomb aluminum, R&D Warhead early in program. Two cutouts show 2ea antennas telemetry.  [CCMD, Ed May]
#21. [33816: 11/03/58] View looking into quadrant 4 of a very early R&D Aft Unit. Note that the instrumental panels are plywood. Developed honeycomb aluminum, R&D Warhead early in program. Two cutouts show 2ea antennas telemetry.
#20: [33826: 11/03/58]  #19: [33824: (11/3/1958)] Thrust Unit electric cables would be connected to the five connectors shown for the transmission of signals such as rocket engine gimbling instructions for directional control, burn time and Thrust Unit separation command. At this point of assembly, the 500 pound Vernier rocket motor is not yet installed. [33826: 11/03/58]  Another view of the G&C package. Six electrical connectors feed propulsion unit (fuel tanks, engine).  [CCMD, Ed May] [33826: 11/03/58]  Another view of the G&C package. Six electrical connectors feed propulsion unit (fuel tanks, engine).  [CCMD, Ed May] [33826: 11/03/58]  Another view of the G&C package. Six electrical connectors feed propulsion unit (fuel tanks, engine).  [CCMD, Ed May]

GROUND CONTROL EQUIPMENT

The human interface to the Jupiter missile came through the Launch Consoles contained within the Launch Trailers. The following five photos show the Launch Trailer and their console’s initial configuration.
[71890: 1/28/1960]  Launch Control Trailer Schematic.  [CCMD, Ed May] [71890: 1/28/1960]  Launch Control Trailer Schematic.  [CCMD, Ed May] [71890: 1/28/1960]  Launch Control Trailer Schematic.  [CCMD, Ed May]
#23. [71890: 1/28/1960] Floor plan of the Electrical Equipment Trailer which was used to run periodic checkups of all missile instrumentation.
[47148: 05/06/1959]  Inside Launch Trailer.  [CCMD, Ed May] [47148: 05/06/1959]  Inside Launch Trailer.  [CCMD, Ed May] [47148: 05/06/1959]  Inside Launch Trailer.  [CCMD, Ed May]
#24. [47148: 05/06/1959] View looking aft in the Launch Control Trailer.
[44647: 04/02/1959]  Inside Launch Trailer. Launch Console was forward in trailer.  [CCMD, Ed May] [44647: 04/02/1959]  Inside Launch Trailer. Launch Console was forward in trailer.  [CCMD, Ed May] [44647: 04/02/1959]  Inside Launch Trailer. Launch Console was forward in trailer.  [CCMD, Ed May]
#25. [44647: 04/02/1959] Also looking aft in the Launch Control Trailer.
[47147: 05/06/1959]  Launch Console for 3 missiles. One display for each of the 3 site missiles.  [CCMD, Ed May] [47147: 05/06/1959]  Launch Console for 3 missiles. One display for each of the 3 site missiles.  [CCMD, Ed May] [47147: 05/06/1959]  Launch Console for 3 missiles. One display for each of the 3 site missiles.  [CCMD, Ed May]
#27. [47147: 05/06/1959] Close up view of the Launch Control Console.
[29998: 9/22/58] Launch Console for 3 missiles. One display for each of the 3 site missiles. [CCMD, Ed May] [29998: 9/22/58] Launch Console for 3 missiles. One display for each of the 3 site missiles. [CCMD, Ed May] [29998: 9/22/58] Launch Console for 3 missiles. One display for each of the 3 site missiles. [CCMD, Ed May]
#26. [29998: 9/22/58] Launch Control Console, one panel for each of the three missiles on the launch site.
Jupiter’s Ground Equipment [49597, 6/18/1959] Chrysler R&D Missile; CM AP initials:  C= Chrysler  M=Missile  AP?=21  = Chrysler Missile 21.  [CCMD, Ed May] [49597, 6/18/1959] Chrysler R&D Missile; CM AP initials:  C= Chrysler  M=Missile  AP?=21  = Chrysler Missile 21.  [CCMD, Ed May] [49597, 6/18/1959] Chrysler R&D Missile; CM AP initials:  C= Chrysler  M=Missile  AP?=21  = Chrysler Missile 21.  [CCMD, Ed May]
#28. [49597; 6/18/1959] Chrysler R&D Missile; CM AP initials: C= Chrysler M=Missile AP?=21 = Chrysler Missile 21 [for reasons of security to conceal the number of the missile a word was used maybe in this case Able B for 2 and A for 1.]
[43361: 03/10/1959]  Juno Missile, moon shot or placing object in orbit? Cooling tower falling away on right side.  [CCMD, Ed May] [43361: 03/10/1959]  Juno Missile, moon shot or placing object in orbit? Cooling tower falling away on right side.  [CCMD, Ed May] [43361: 03/10/1959]  Juno Missile, moon shot or placing object in orbit? Cooling tower falling away on right side.  [CCMD, Ed May]
#29. [43361: 03/10/1959] Juno Missile, moon shot or placing object in orbit? Cooling tower falling away on right side.
Last Updated: 01/21/2018 16:36